SF-3-277-300

Продам 3-кімнатну квартиру в новобудові, ЖК «Мира-3»

Розташування: Харків, Індустріальна, Роганський напрямок, ХТЗ, Миру вул., 43
3 Кімнат
80 м2
4/9 4
Ціна
41 500 $
Комісія:
5%

Інформація

Продаж просторої 3-кімнатної квартири у сучасній новобудові ЖК Мира-3.
Адреса: вул. Миру, 43
Поверх: 4/9
Загальна площа: 79,6 м2
Метро: ХТЗ та Індустріальна (10 хв.)
Розглядається продаж за єВідновлення та єОселя!

Квартира у будівельному стані - чудовий варіант для реалізації власного дизайнерського проєкту; комплектація від забудовника.
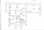
Продумане планування:
- Кухня (9.5 м2)
- Три окремі кімнати (20.1 м2, 16.6 м2, 11.6 м2)
- Санвузол (4.9 м2)
- Коридор (13.4 м2)
Квартира не кутова, на дві сторони.

Будинок цегляний, утеплений мінеральною ватою, обжитий, з усіма комунікаціями.
Розвинений житловий комплекс з усім необхідним для комфортного життя. Поруч магазини, кіоски, супермаркети, парки. На території комплексу є сучасні дитячі майданчики, лавочки для відпочинку.

Ідеальний варіант як для власного проживання, так і для інвестицій.

Показ у зручний для вас час.
З повагою до вас – Олексій Сергійович, АН ОБ’ЄКТ.

Інфраструктура

Громадський транспорт: метро - Індустріальна (10 хв. пішки, 3 хв. на транспорті);
Заклади освіти: школа, дитсадок;
Банківськи послуги: банкомат, термінал прийому платежів;
Побутовий сервіс: мінімаркет, супермаркет, парковка перед будинком, перукарня, пошта;
Релаксаційні сервіси: парк (сад), дитячий майданчик;
Обʼєкти громадського харчування: кафе, фастфуд;
41 500 $ вартість об'єкта
521 $ ціна за м2
79.60 м2
3 кімнат
4 Поверх
9 К-ть поверхів

Параметри

центральна Вода:
центральне Опалення:
цегла Матеріал стін:

Доброустрій

Ліфт: пасажирський;
Безпека: домофон;
Автономність: Є вода, Є опалення;

Додатково

Утеплення: Зовнішнє;
Юридична інформація: єВідновлення, єОселя ;
Дата оновлення інформації: 12.02.2026 13:20;